网站首页 - 网站地图 - wap网操作指南页
Copyright(C) bet36365官网管委会 主办 豫ICP备11018640号 ![]() 豫公网安备 41019602002122号 网站标识码:4101910001版权所有:bet36365官网管委会 联系电话:0371-86623166 |
![]() |
|
![]() |
||
?
公示信息:
项目名称:经北四路与四港联动大道(G107)立交工程
类 型:批前公示
公示类别:建设工程(交通)规划许可证公示
建设单位:郑州经济技术开发区建设投资有限公司
用地位置:经北四路、四港联动大道(G107)
公示期限:10日
公示日期:2017年12月27日至2018年1月8日
经办处室单位:郑州市城乡规划局经济技术开发区分局
咨询电话:0371-66781321
经办人:陈先生
附加说明: 查询详细内容,请出示身份证明,到我局办理相关手续后查询。依据《城乡规划法》、《行政许可法》、《河南省城市规划公示制度》等有关法律法规,特此公示。如有意见和建议,请于公示时间内向我局反馈。电话:0371-66781321。
详细内容:区位图,断面图,说明
工程区位图
国道107现状断面宽60m(2×6m边花坛+2×20m行车道+8m中央分隔带),本次设计在原断面两侧增设地面辅道和人行道,辅道和人行道与国道107平行布设接起终点处现状道路,路基总宽度90m(2×4m人行道+2×11m辅道+60m)。
国道107路基横断面60m
国道107路基横断面90m
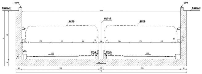
经北四路规划断面60m(2×5m人行道+2×5m辅道(机非混行车道)+2×2m侧分带+2×15m机动车道+6m中央分隔带)。下穿G107隧道开口、闭口及地面引线段采用27.0m断面。起点与现状路采用渐变顺接。
经北四路路基横断面60m
经北四路路基横断面隧道开口段
匝道均采用单向双车道,路基宽度为9.0m,即:2×0.5m(土路肩)+2×0.5m(硬路肩)+2×3.5m(行车道)=9.0m。
匝道路基横断面9m
(1)国道107两侧设置辅道,辅道路基宽度分别为18.0m和15.0m,即:14.0m(双向辅道)+2×2.0m(人行道)=18.0m;11.0m(单向辅道)+4.0m(人行道)=15.0m。

辅道路基横断面18m/15m
(2)经北四路两侧设置辅道(机非混行车道),路基宽度为13.0m,即:8.0m(辅道)+5.0m(人行道)=13.0m。
机非混行车道路基横断面13m
京港澳高速现状路基横断面宽度为35.0m,双向六车道,即:(2×0.75m土路肩+2×3.5m硬路肩+2×3×3.75m行车道+2×0.5m路缘带+3m中央分隔带)=35.0m。结合项目实际,京港澳高速保通便道路基标准横断面宽32.0m,双向六车道,即:(2×0.75m土路肩+2×2.5m硬路肩+2×3×3.75m行车道+2×0.5m路缘带+2m中央分隔带)=32.0m。
京港澳高速路基横断面35m
京港澳高速保通便道路基横断面32m
说明:本项目全线共设大桥5座,总长1616m:中桥2座,长159m:桥梁共长1775m,其中加宽桥梁1座,长480m。本项目匝道桥5座,全长1199m。
(一)A匝道桥
AK0+271匝道桥上跨地面辅道,桥梁全长79.5m,桥宽9m。桥跨布置为3×25 m,上部结构为预应力混凝土现浇箱梁,下部结构为柱式桥墩、薄壁式桥台、钻孔灌注桩基础。
(二)B匝道桥
BK0+602匝道桥分别上跨地面辅道、国道107、C匝道、经北四路,桥梁全长737.5m,考虑曲线加宽,加宽后桥宽9-10.1m。桥跨布置为4x27+3x34+3x24+4x25+4x20+4x20+4x20+(3x28+26.65)m,上部结构为预应力混凝土现浇箱梁,下部结构为肋式桥台、柱式桥墩、钻孔灌注桩基础。
(三)C匝道1号桥
CK0+344.354匝道桥上跨经北四路,桥梁全长105m,桥宽10.5m。桥跨布置为4x25m,上部结构为预应力混凝土现浇箱梁,下部结构为柱式墩台、钻孔灌注桩基础。
(四)C匝道2号桥
CK0+795.5匝道桥上跨地面辅道,桥梁全长79.5m,桥宽10.5m。桥跨布置为3×25 m,上部结构为预应力混凝土现浇箱梁,下部结构为柱式桥墩、薄壁式桥台、钻孔灌注桩基础。
(五)D匝道桥
DK0+211.8匝道桥分别上跨地面辅道、C匝道,桥梁全长197.5m,桥宽9-10.1m。桥跨布置为3x30+5x21m,上部结构为预应力混凝土现浇箱梁,下部结构为肋式桥台、柱式桥墩、钻孔灌注桩基础。
网站首页 - 网站地图 - wap网操作指南页
Copyright(C) bet36365官网管委会 主办 豫ICP备11018640号 ![]() 豫公网安备 41019602002122号 网站标识码:4101910001版权所有:bet36365官网管委会 联系电话:0371-86623166 |
![]() |
|
![]() |
||